Retail · Yuen Long

YOHO Mall

YOHO Mall

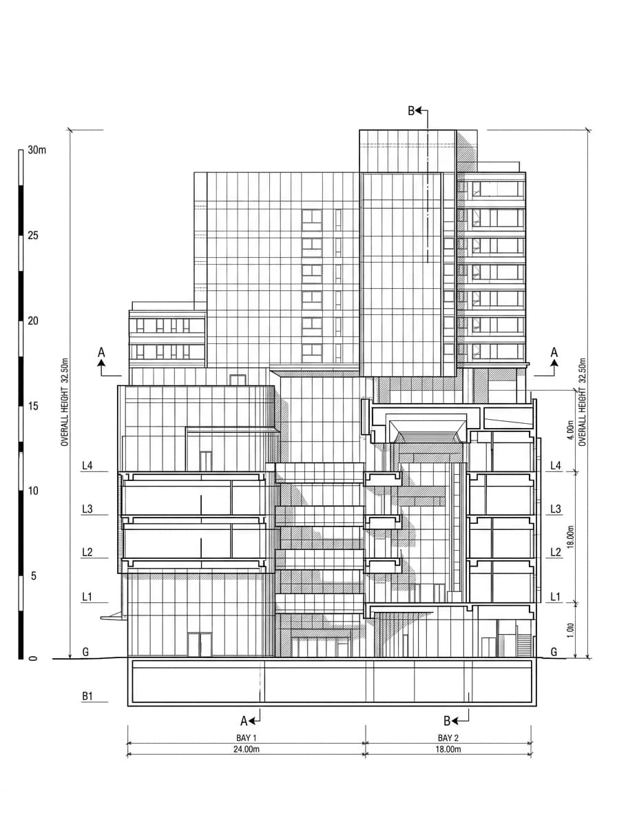
Architectural elevation drawing of YOHO Mall, Yuen Long, Hong Kong

Plate 222 · Elevation drawing · 3:4

Building Data

Year

2017

Height

Floors

3

Below grade

Architect

Various

Style

Contemporary

Heritage

Engineer

Notes

Largest shopping mall in Yuen Long, connected to Yuen Long West Rail station

Notable Features

Largest mall in Yuen Long; 2 phases; connected to Yuen Long MTR

Ownership & Operations

Owner

Sun Hung Kai Properties

Parent Co.

SHKP

Developer

Operator

Sun Hung Kai Properties

Mgmt Co.

Kai Shing Management

Contact

Phone

(852) 2967 0523

Email

Website

https://www.yohomall.hk

Leasing

Location

Address

9 Long Yat Road, Yuen Long

MTR

Yuen Long

22.445800°N, 114.035800°E