◇Heritage · Central
Tai Kwun (Central Police Station Compound)
大館
Also known as: CPS Compound

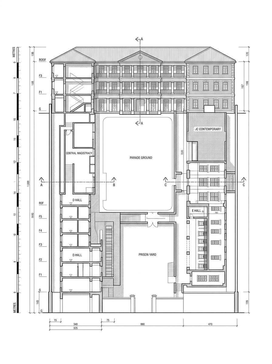
Plate 021 · Elevation drawing · 3:4
Building Data
Year
1864
Height
—
Floors
3
Below grade
0
Architect
British Colonial / Herzog & de Meuron (renovation)
Style
Victorian Colonial / Contemporary
Heritage
Grade I (multiple buildings)
Engineer
—
Notes
Former Central Police Station, Magistracy and Victoria Prison. UNESCO Award of Excellence
Notable Features
16 heritage buildings; former police station + magistracy + prison; HK$3.8B renovation
Ownership & Operations
Owner
The Hong Kong Jockey Club
Parent Co.
HKJC
Developer
Hong Kong Government
Operator
The Hong Kong Jockey Club
Mgmt Co.
Tai Kwun Management
Contact
Phone
(852) 3559 2600
Email
info@taikwun.hk
Website
https://www.taikwun.hk
Leasing
—
Location
Address
10 Hollywood Road, Central
MTR
Central
22.281500°N, 114.154000°E