□Cultural · Tsim Sha Tsui
Hong Kong Cultural Centre
香港文化中心
Also known as: HKCC

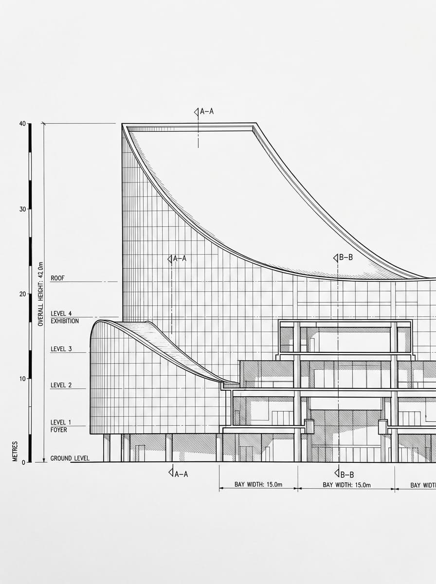
Plate 122 · Elevation drawing · 3:4
Building Data
Year
1989
Height
—
Floors
5
Below grade
2
Architect
Government Architect
Style
Postmodernist
Heritage
—
Engineer
—
Notes
Windowless pink-tiled performing arts venue on the TST waterfront. Controversial but iconic design
Notable Features
Windowless pink-tiled design; controversial but iconic; harbour-facing
Ownership & Operations
Owner
HKSAR Government
Parent Co.
LCSD
Developer
Hong Kong Government
Operator
LCSD
Mgmt Co.
LCSD
Key tenants: Concert Hall · Grand Theatre
Contact
Phone
(852) 2734 2009
Email
—
Website
https://www.lcsd.gov.hk/CE/CulturalService/HKCC
Leasing
—
Location
Address
10 Salisbury Road, Tsim Sha Tsui
MTR
Tsim Sha Tsui
22.293500°N, 114.170900°E